ELADVA!

1. emelet, Eladva, I. emelet

ELADVA!

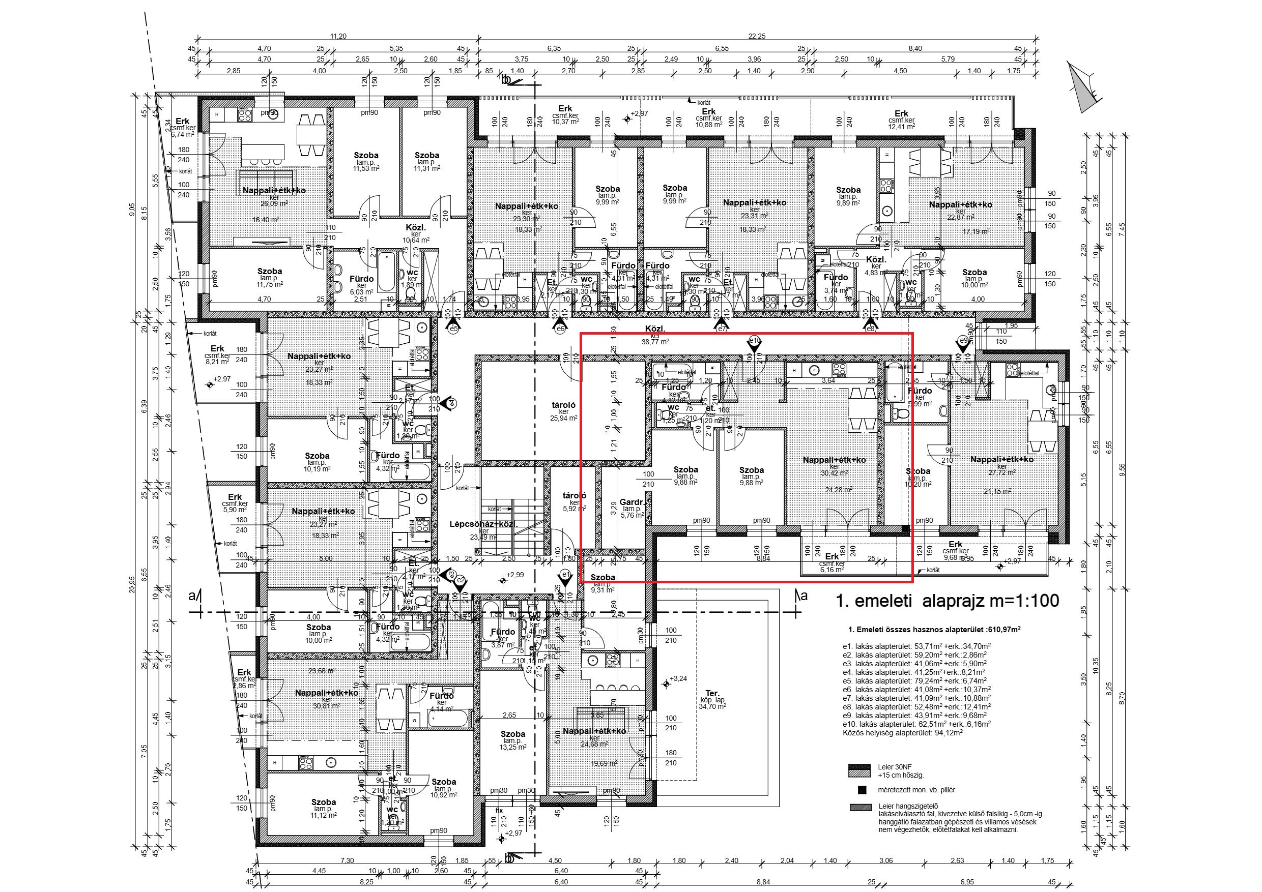
Alapterület62,51 m2
Terasz / erkély méret6,16 m2
Szobák számaNappali + 2