Új társasházaink Győr közvetlen szomszédságában Szitásdombon épülnek fel.
06 20 449 0276 , 70 670 0475
info@szabadilakopark.hu
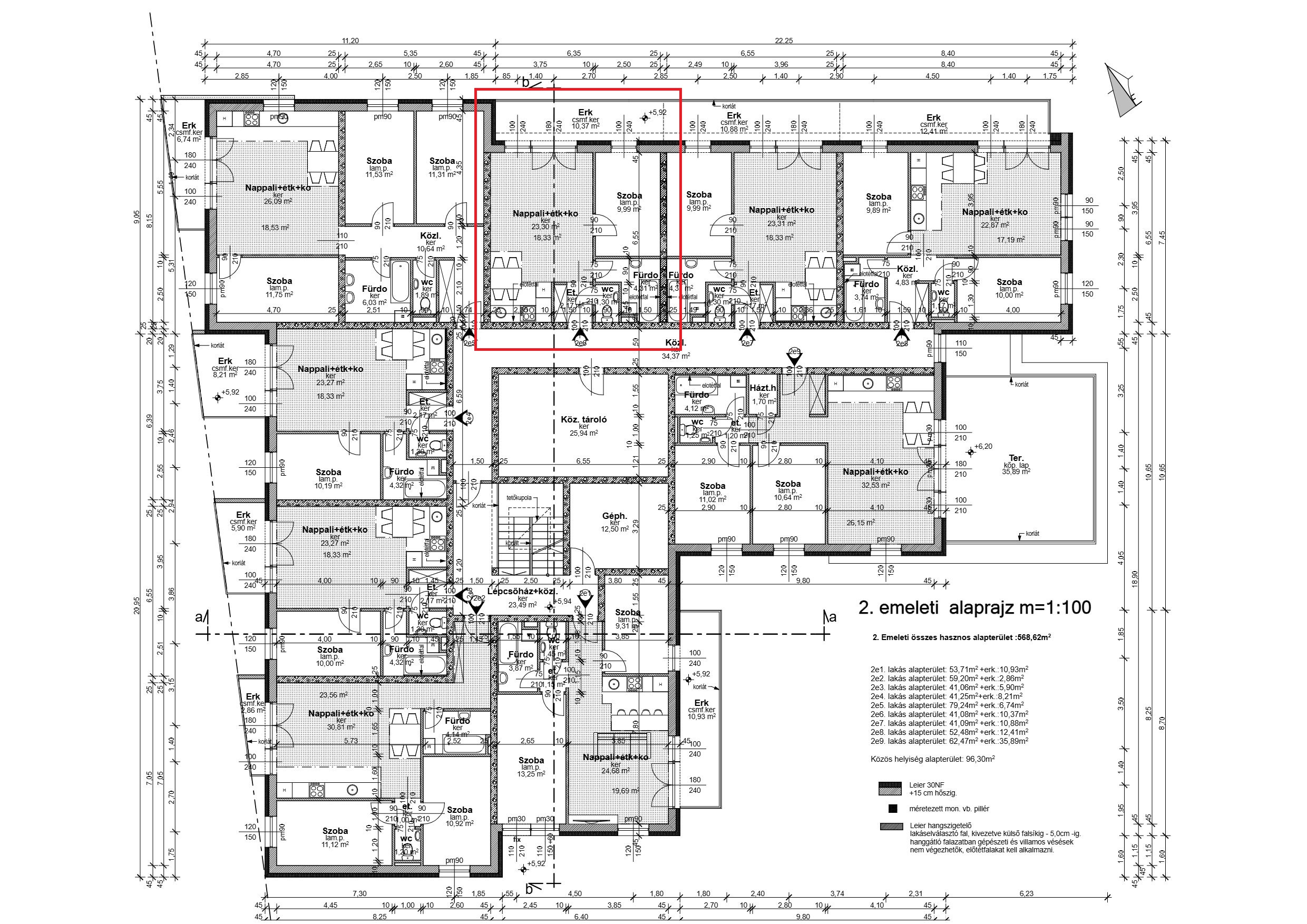
2. emelet, II. emelet