ELADVA!

1. emelet, Eladva, I. emelet

ELADVA!

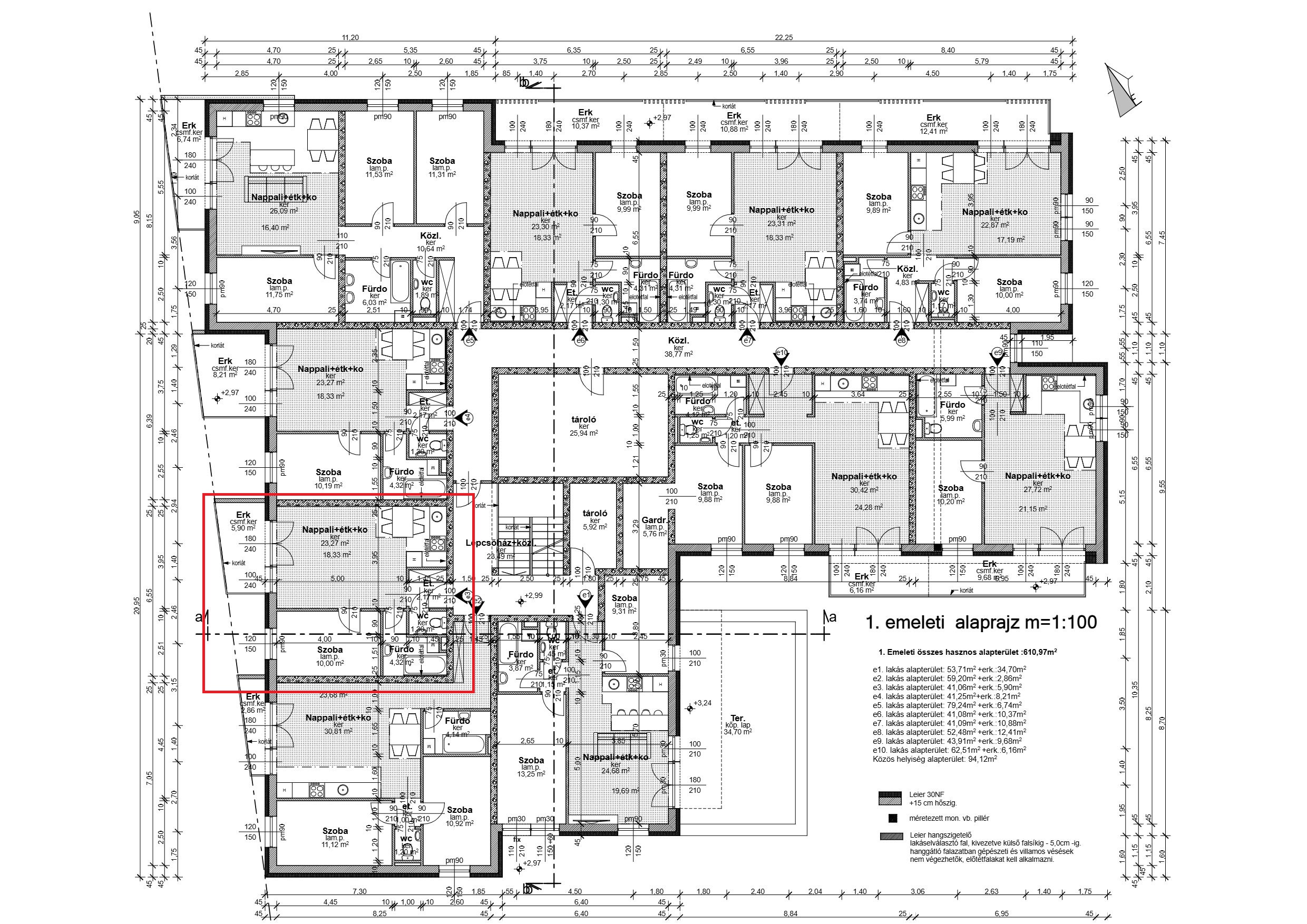
Alapterület41,06 m2
Terasz / erkély méret5,90 m2
Szobák számaNappali + 1