ELADVA!
Eladva, Földszint, földszint
ELADVA!
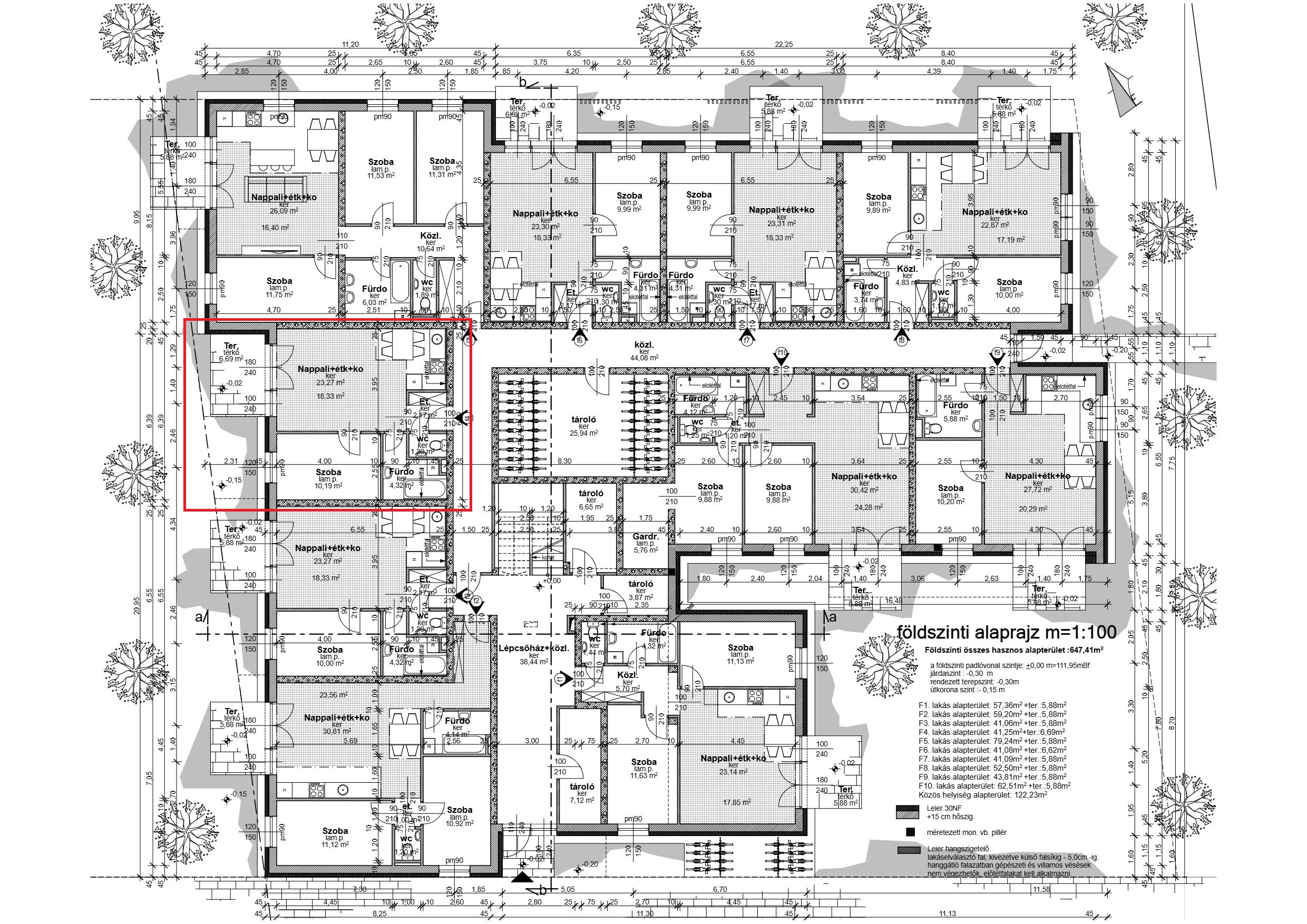
| Alapterület | 41,25 m2 |
| Terasz / erkély méret | 5,88 m2 |
| Kert méret | 40 m2 |
| Szobák száma | Nappali + 1 |
ELADVA!
Eladva, Földszint, földszint
| Alapterület | 41,25 m2 |
| Terasz / erkély méret | 5,88 m2 |
| Kert méret | 40 m2 |
| Szobák száma | Nappali + 1 |