Új társasházaink Győr közvetlen szomszédságában Szitásdombon épülnek fel.
06 20 449 0276 , 70 670 0475
info@szabadilakopark.hu
Eladva
Eladva, Földszint, földszint
62,51 m2
43,81 m2
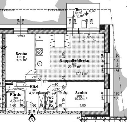
52,50 m2
41,09 m2
41,08 m2
Földszint, földszint
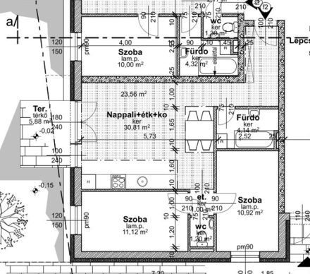
79,24 m2
41,25 m2
41,06 m2
59,20 m2
57,36 m2