Új társasházaink Győr közvetlen szomszédságában Szitásdombon épülnek fel.
06 20 449 0276 , 70 670 0475
info@szabadilakopark.hu
Eladva
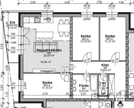
1. emelet, Eladva, I. emelet
62,51 m2
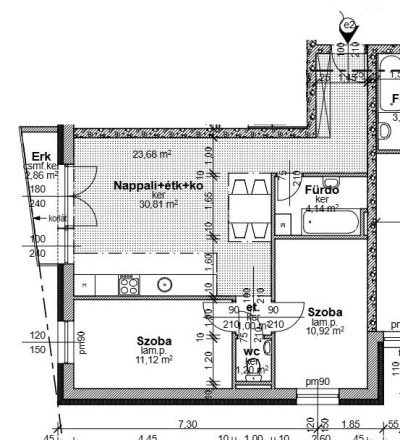
43,91 m2
52,48 m2
41,09 m2
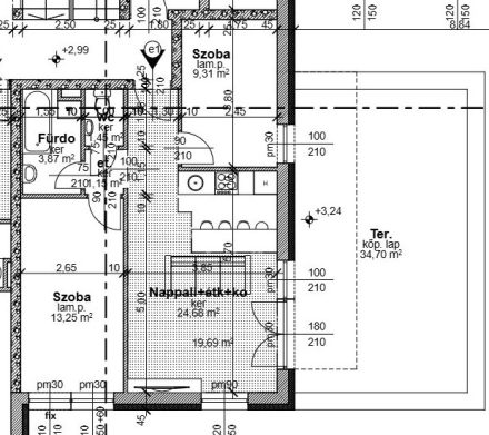
41,08 m2
1. emelet, I. emelet
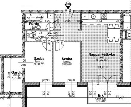
79,24 m2
41,25 m2
41,06 m2
59,20 m2
53,71 m2